Struttura Turistico/Residenziale
LOCALITA’:
Crocefisso – Frascati (Roma)
COMMITTENTE:
Soc. Lucrezia Romana 2003 r.l.
PROGETTISTA:
Ing. Maurizio Tallarico
CRONOLOGIA:
2002 Approvazione del P.R.U.S.S.T. dei Castelli Romani e Monti Prenestini
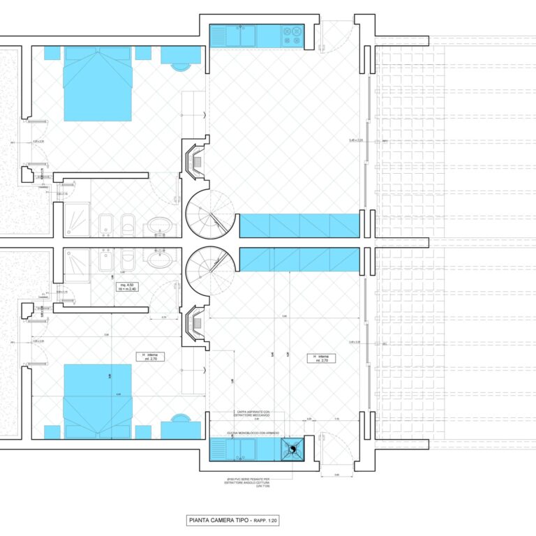
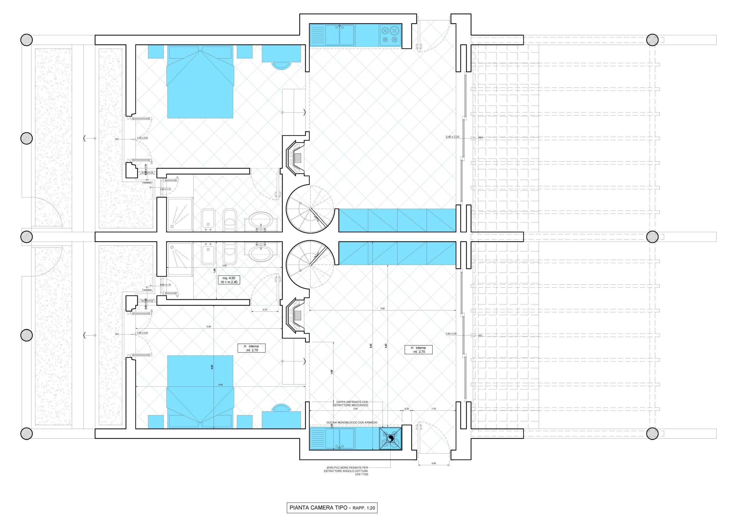
DESCRIZIONE:
Il progetto prevede33 unità “turistico-residenziali” di circa 40 mq ciascuna, e sorge su un altopiano in cui i servizi pertinenziali sono ricavati da un ampio volume ipogeo. L’area esterna, al servizio esclusivo della struttura, misura circa 6000 mq ed è costituito da uliveto pre-esistente all’interno del quale si sviluppano percorsi ludici e per il tempo libero.











