Centro commerciale “Le colline di Lucullo”
LOCALITA’:
Frascati (Roma) Via di Grotte Maria (Via di Salè)
COMMITTENTE:
Centro Commerciale Le Colline di Lucullo s.r.l.
PROGETTISTA:
Ing. Maurizio Tallarico
Arch. Tonino Petrella
CRONOLOGIA:
2003 Progetto Architettonico
DESCRIZIONE:
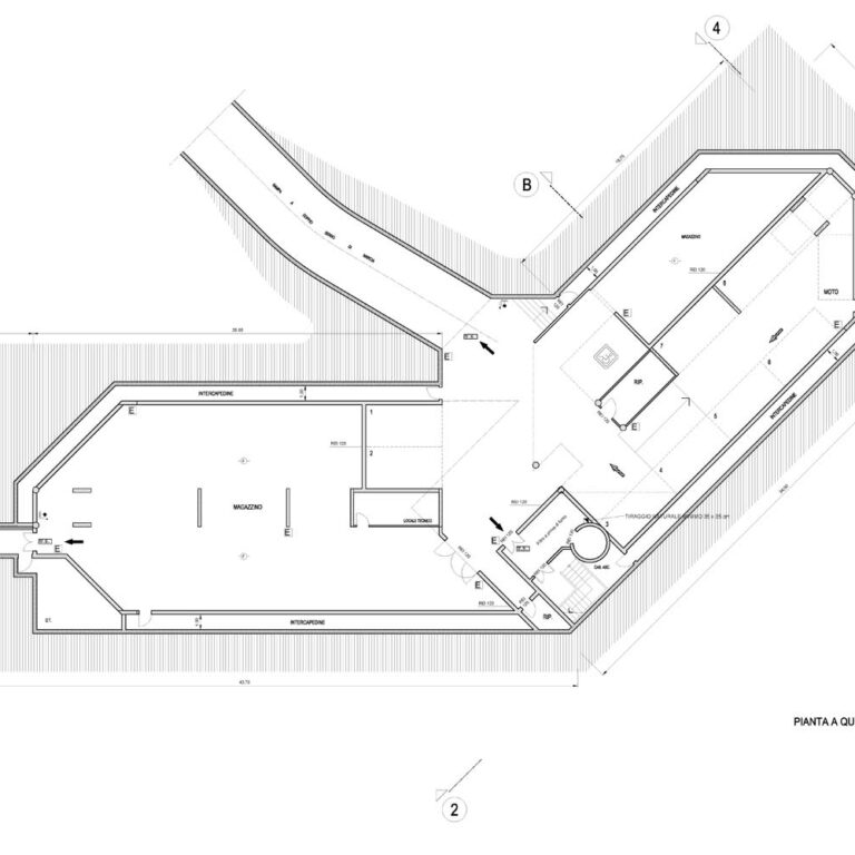
Il centro commerciale si sviluppa su tre livelli per un totale di 785 mq v.p.p. nei due piani commerciali e 875 mq v.p.p. nel piano interrato adibito a parcheggi e servizi pertinenziali. Esso costituisce intervento di OO.UU. Secondarie di un P. di L. convenzionato (Le Colline di Lucullo).









